Accionamiento manual basculante por estribo CBA

Accionamiento manual basculante por estribo CBA

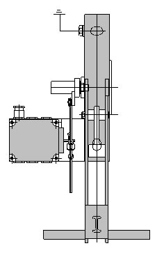
Mando manual de tracción por estribo. Admite accesorios como aisladores intermedios, cajas de contactos auxiliares, cerraduras de enclavamiento, etc.

Generalidades

Mando manual de tracción por estribo.

Se le puede acoplar el accionamiento eléctrico del tipo MET.

Admite accesorios como aisladores intermedios, cajas de contactos auxiliares, cerraduras de enclavamiento, etc.

Puede llegar hasta los 30 m de altura con los correspondientes reenvíos intermedios.

Observaciones

Otras ejecuciones especiales, bajo demanda.

Construcción

En acero laminado galvanizado.

Tienes que estar registrado para poder acceder a los planos e instrucciones

Conectar